Centrifugal Fans — Series U/HPG
High-performance centrifugal fans for industrial air handling and extraction, suitable for clean or dusty air.
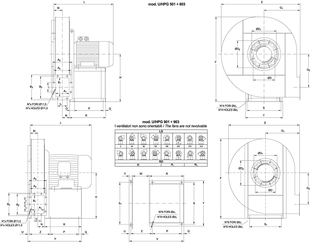
The U/HPG series centrifugal fans are designed to take up air — both clean and dusty — at temperatures up to 80 °C. These high-performance units are suited for industrial environments where robust airflow capability and pressure performance are required for extraction, ventilation, and air movement tasks.
Provide effective air suction and conveyance in industrial systems
Handle both clean and dusty air streams (non-abrasive)
Serve in applications with elevated airflow and moderate pressure demands
Integrate into ducted ventilation and extraction networks