Cas-f ™
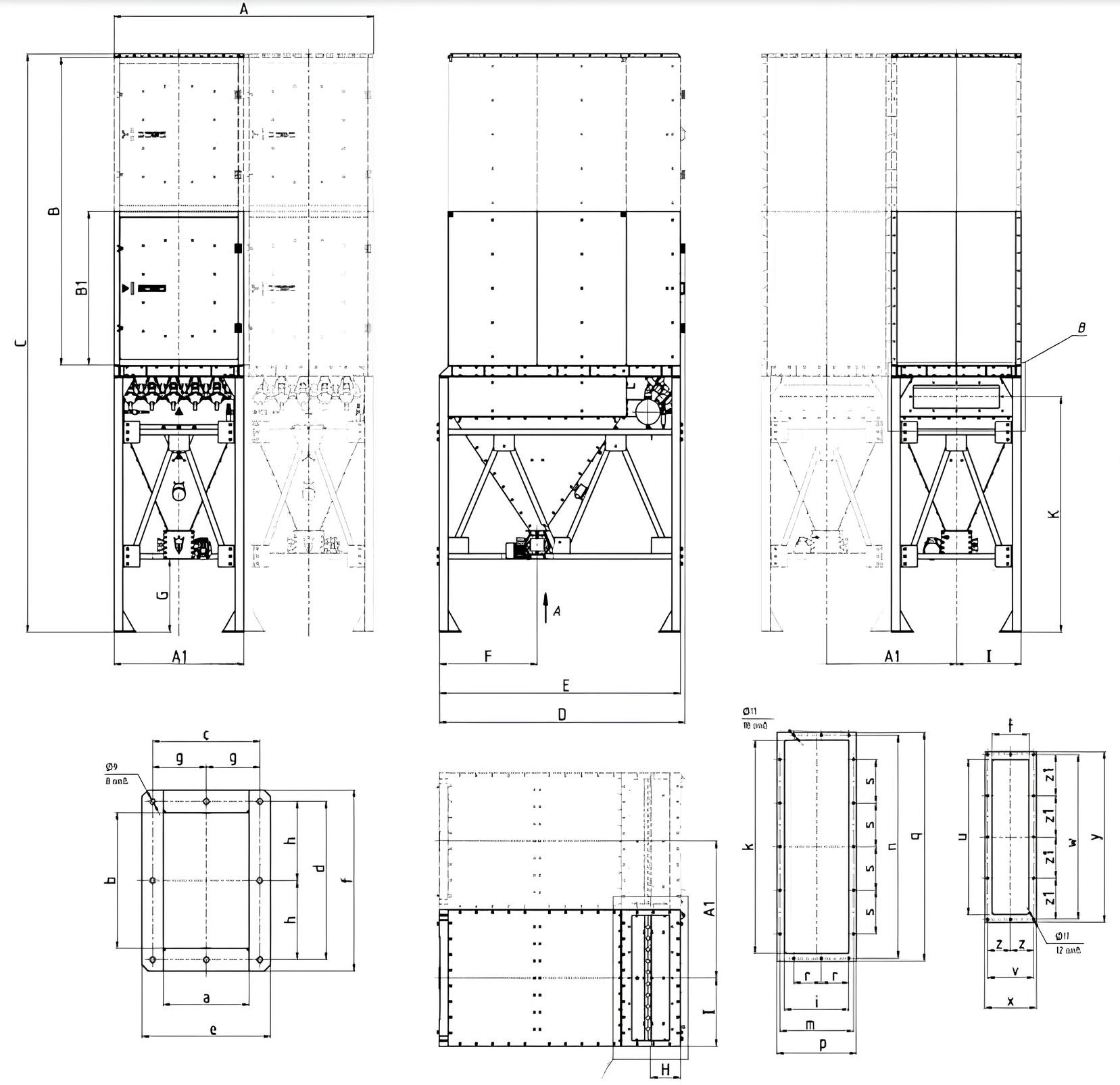
Dusty air enters, filters through elements, collecting dust. Clean air is released via an exhauster fan. Remaining dust is disposed of through a regeneration system. Outlet unit releases dust into the collection chamber or back into the industrial process.

