Centrifugal Fans — Series U/HF 

High-efficiency centrifugal fans designed for industrial ventilation and air extraction with enhanced airflow and pressure capabilities.

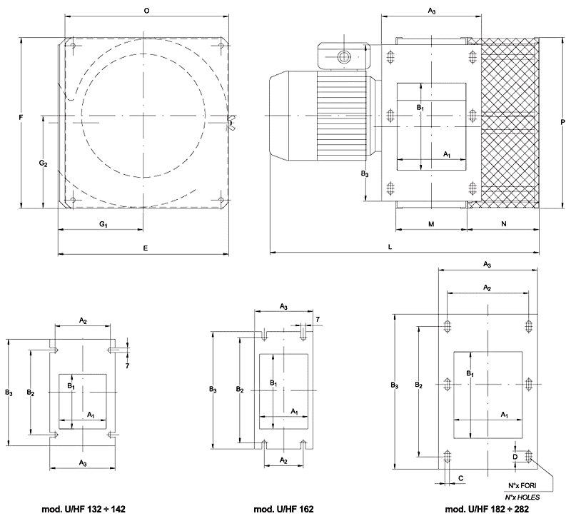
The U/HF series centrifugal fans are engineered to convey air and slightly dusty air at temperatures up to 80 °C. They provide high airflow with increased pressure performance, making them suitable for demanding industrial ventilation systems and extraction applications. 

Contact us

 

The U/HF series centrifugal fans are designed for:
  • Industrial air ventilation and extraction systems

  • Process ventilation and extraction of slightly dusty air

  • Medium-to-high pressure airflow demands

  • Integration into duct networks with varying resistance

Featuring robust construction, balanced impellers, and direct motor coupling, these fans deliver efficient and reliable operation in continuous industrial use.

Applications

Industrial Ventilation

General air movement • Facility ventilation

Air Extraction Systems

Removal of air • Process fumes

Dusty Air Handling

Slightly dusty air • Non-abrasive applications

Medium-to-High Pressure Systems

Elevated static pressure • Ducted networks

DISCOVER OTHER PRODUCTS